台北大樓法拍

台北大樓法拍|雙北法拍代標元大之星豪宅內湖科學園區

【元大之星】SRC豪宅 平面車位 第五期重劃區
列印
  • 售5960萬
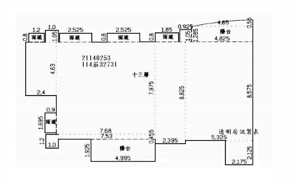
    1. 案號:114莊32731
    2. 類型:法拍大樓
    3. 總登記坪數:
    4. 每坪單價:
    5. 地址:台北市內湖區南京東路六段259號13樓-2
    1. (煩請告知聯絡人,您是在House-Info房屋網看到廣告,感恩幫忙)
    2. 0918-350-012
    1. 市話:
    2. 公司名稱:
    3. 公司地址:
    【元大之星】SRC豪宅 平面車位 第五期重劃區-QR CODE 我要留言 加LINE好友
物件介紹
詳細資料
銷售狀態
待標中
格局
0房
社區/大樓
元大之星(元大建設)
屋齡
14年
車位
坡道式平面車位
所在樓層
13樓/共18樓
管委會
中庭
電梯
邊間
是否凶宅
不是
法拍屋
拍次
第二拍
開標日期
115/4/8(三) 14:30
瀏覽人次
13人次
坪數說明
建物登記總坪數
89.74坪
主建物
45.51坪
附屬建物
7.72坪
公共設施
24.82坪
停車位
11.69坪
土地登記總坪數
13.40 坪
特色描述

【物件資料】

🎈社區:元大之星

🎈門牌:台北市內湖區南京東路六段259號13樓-2

🎈樓層:13樓/共18層樓(鋼骨鋼筋混凝土造)

🎈主建坪:45.51坪

🎈附屬坪:7.72坪

🎈停車坪:11.69坪(含停車位編號99號)

🎈公設坪:24.82坪

🎈土地坪:13.40 坪 【住宅區■114年公告現值:380000元/㎡】合計:44.30㎡

🎈點交情形:點交(租約於本件查封後屆期,且屆期後不得另訂租約或默示更新租約)

🎈拍賣原因:《拍賣抵押物》

🎈投標地點:士林 法院

🎈前手交易格局:3房2廳2衛

🎈實價登錄:同棟大樓成交均價(91.79萬/坪)不含車位價

🎈第二拍底價:5,960.0萬(66.4萬/坪)

🎈前手交易:101年12月 6,959萬(85.8萬/坪) 車位260萬

 

【生活機能】

✅明美公園, 110公尺,步行6分鐘

✅潭美公園, 350公尺,步行1分鐘

✅中油直營站 新明路站, 700公尺,車程4分鐘

✅迪卡儂臺北內湖店,1公里,步行14分鐘

✅好市多Costco 內湖店,1.2公里,車程3分鐘

✅IKEA宜家家居 內湖店,750公尺,步行11分鐘

✅潭美國民小學,83公尺,步行1分鐘

✅內湖科技園區,4.3公里,車程8分鐘

 

【交通機能】

🚘捷運松山站,1.3公里,車程6分鐘

 

 【法拍之道,專業為鑰】

🟠 標前審勢,明察房市漲跌,確立最佳競標策略。 
🟠 標中運籌,謀定後動,穩中求勝,助君得標。 
🟠 標後護航,產權過戶,點交無憂,一切妥帖。

 

 【經紀業:一零四法拍網股份有限公司】 

🏆 經紀人:林桂英 北市經證第1243號

🏆 營業員:劉怡吟 111年登字419331號

🏆 贏法拍專線: 0918-350-012 (同Line電話)

 

  贏法拍✅提供標購法拍房地全程服務✅只想為您贏得理想家園。

📞時不再來,機不可失!此等稀世之機,當速與贏法拍聯繫,共商競標大計

 

關於我們

我們成立於民國75年,至今共39年的歷史

我們以法拍資訊起家,提供法拍投資者顧問諮詢的服務。從法拍資訊端開始,提供法拍屋相關課程,法拍屋合夥投資、法拍屋代標的一條龍務。

我們是國內成立最早、規模最大,擁有八成的市佔率。

我們資歷20年以上的員工佔7成以之,員工的流動率低,是提供客戶永續服務最有力的保證,我們不僅在法拍資訊深耕,首創法拍APP,更發展出結合預售與實價買賣行情的APP,全面掌握房地產的走向與趨式。

我們從提供諮詢開始,到協助客戶取得使用權為止,都是採全程陪同、包辦交屋的方式。沒得標,免付費。

 

代標三不守則

01 不得經手保管客戶投標保證金及投標尾款

02 不得巧立名目,賺取約定服務費以外費用

03 不得賺取差價

 

代標服務

提供諮詢、篩選標的、過濾案件、實地勘查、銀行核貸(代墊尾款)、評估標價、法院投標、得標作業、取得所有權、辦理過戶、點交/不點交流程、取得使用權(交屋)

台北內湖法拍大樓-0
台北內湖法拍大樓-0
台北內湖法拍大樓-1
台北內湖法拍大樓-1
台北內湖法拍大樓-2
台北內湖法拍大樓-2
台北內湖法拍大樓-3
台北內湖法拍大樓-3
台北內湖法拍大樓-4
台北內湖法拍大樓-4
台北內湖法拍大樓-5
台北內湖法拍大樓-5
台北內湖法拍大樓-6
台北內湖法拍大樓-6
台北內湖法拍大樓-7
台北內湖法拍大樓-7
台北內湖法拍大樓-8
台北內湖法拍大樓-8
台北內湖法拍大樓-9
台北內湖法拍大樓-9
台北內湖法拍大樓-10
台北內湖法拍大樓-10
台北內湖法拍大樓-11
台北內湖法拍大樓-11
物件留言
請注意,如果您詢問的內容與物件不相符合或是廣告,經過審核,系統將會直接刪除您的發問內容
等待圖示
免責聲明:House-Info房屋網平台系統為租用式開放房屋買賣網站建置平台,僅提供會員查詢-台北市,內湖區,大樓-等房屋資訊參考,並不涉入任何諮詢、交易。 物件(服務)聯絡人公佈的資訊、文字、照片、圖形、產權、廣告內容、或其他資料若有不實或違法情事,或與客戶聯絡交易過程中若衍生民事或刑事等法律問題,皆與House-Info房屋網站無關,所有商標、文章、名稱等版權,皆歸屬原著作者所有!